采购单位:广东省财政厅
采购产品:档案密集架
广东振越智能家具有限公司—主营:密集架,智能密集架,电动密集架,档案密集架,是一家专注档案装具设备生产厂家。
138-2629-3157
广东振越智能家具有限公司
全国免费服务热线:020-37431808
24小时服务热线:138-2629-3157
联系人:袁先生
QQ:1654736290
地址:广州市白云区江高镇江村古楼工区东巷20号
本项目业主为广东省财政厅,广东省财政厅大楼,在北京路北端。是一幢仿欧洲流行古典建筑风格的砖、木、钢筋混凝土结构大楼。财政厅大楼前身为明清两代的广东承宣布政使司(即藩司衙门),乃朝廷派驻广东省的最高行政机构。1993年广州市政府公布为市级文物保护单位。2002年7月广东省政府公布为省级文物保护单位。
1、客户需求:
由于原有档案处密集架,已陈年老旧,为响应国家建设,以及厅内档案的增多,广东省财政厅领导决定,将原有库房加固,加设密集架,以及恒温恒湿,消防等设备。
2、勘察现场:
2020年的一个上午,我们来到广东省财政厅,勘查了现场。

3、设计思路:
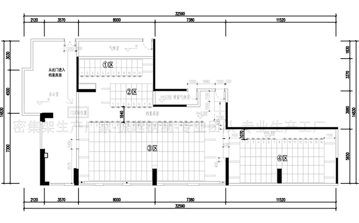
与厅内各领导对原有库房的拆除,以及新库房的建设方案,做了大致规划。测量好房间后,我司以密集架为主导,装修及消防设施,恒温恒湿辅导,共同给单位设计了一套完整方案。

经过几次与单位上的施工与探讨,最终经过一个多月时间,确定了以下施工图。

4、“标杆工程”开始配合装修等一系列,正做前期准备工作。
5、密集架预埋轨道,经过2天工人加班,在最快的速度内铺设好了轨道。

6、安装流程,在省财政厅领导对工程进度时间的安排上,振越钢制工作人员快马加鞭,在保证质量及工作时间进度的情况下,满意的交付了答卷。
7、验收流程,在安装完后一周,财政厅内各项工程完工,大家迎来了验收,广东省财政厅也是建设标准绿色档案库房,对库房内的安全,高效,节能进行了一一验收。

最后,我司广州振越钢制办公设备有限公司广东省财政厅档案处密集架项目顺利的完成了验收,并取得了各领导的一致好评。验收会议领导发言,以后将会有更多兄弟单位来到财厅参观密集架工程,希望我们的产品经得起时间的考验。我们也相信,好产品可以经得起时间的考验。最后祝愿,省财厅在国家财政上能取得新的突破,为粤港澳大湾区做好财政力量的稳定攻坚工作!